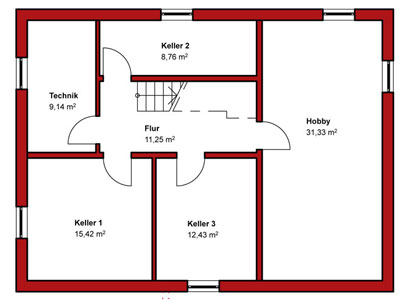
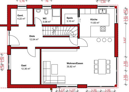
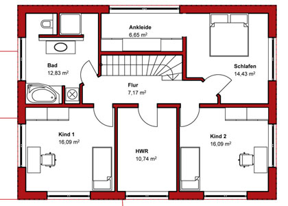
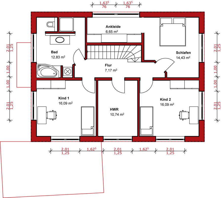
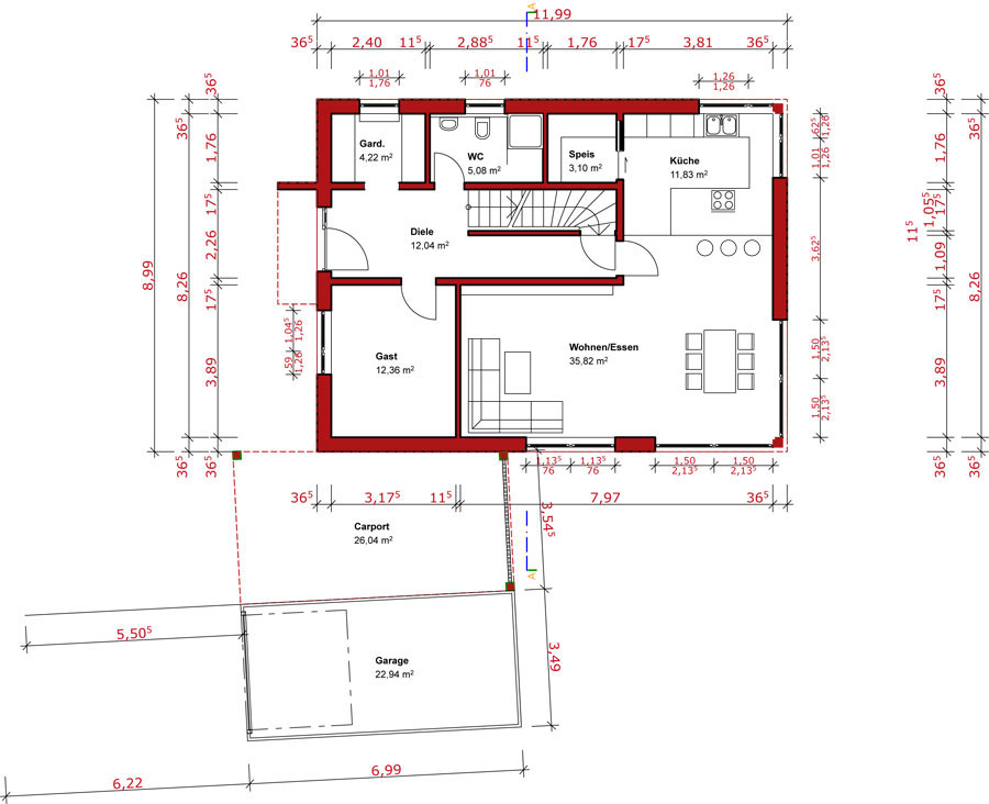
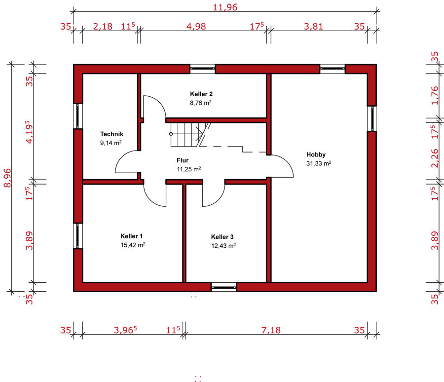
Einfamilienhaus - Kissing
Beginn - Fertigstellung
- Herbst 2024
- Herbst/Winter 2025
Status
- Verkauft

Warum E+M Wohnbau GmbH?
30 Jahre
Profitieren Sie von über 30 Jahren Bauerfahrung auf höchstem Niveau und der über lange Jahre gewachsenen Zusammenarbeit mit unseren Stammhandwerkern.
mehr Info
Individuell
Jedes Haus wird individuell geplant und perfekt auf Ihre Bedürfnisse zugeschnitten. So können Ihre Wünsche und Ideen optimal umgesetzt werden.
mehr Info
Festpreis
Individuelle Betreuung wie beim Architekten, höchste Qualität, faire Preise sowie absolute Termintreue.
Garantierter Festpreis.
"Bauen ist Vertrauenssache"
Jürgen Eisele
Geschäftsführender Gesellschafter
"Vertrauen Sie auf unsere über 30-jährige Erfahrung.
Bauen ist Vertrauenssache."